Pesquisas recentes
trending_up Tendencias
category CategorÃas populares
A pesquisar:
O mais pesquisado
search_off
Nenhuma sugestão encontrada
Presiona Enter para buscar
Minhas Pesquisas
1) { selectedImageIndex = selectedImageIndex > 0 ? selectedImageIndex - 1 : 18; }"
@keydown.arrow-right.window="if (!showFullscreen && 19 > 1) { selectedImageIndex = selectedImageIndex < 18 ? selectedImageIndex + 1 : 0; }"
>
0 ? selectedImageIndex - 1 : 18"
class="absolute left-4 top-1/2 -translate-y-1/2 w-12 h-12 bg-white/90 dark:bg-gray-800/90 hover:bg-white dark:hover:bg-gray-800 rounded-full shadow-lg flex items-center justify-center transition-all hover:scale-110"
>
mail
Enviar email
/ 19
Descrição
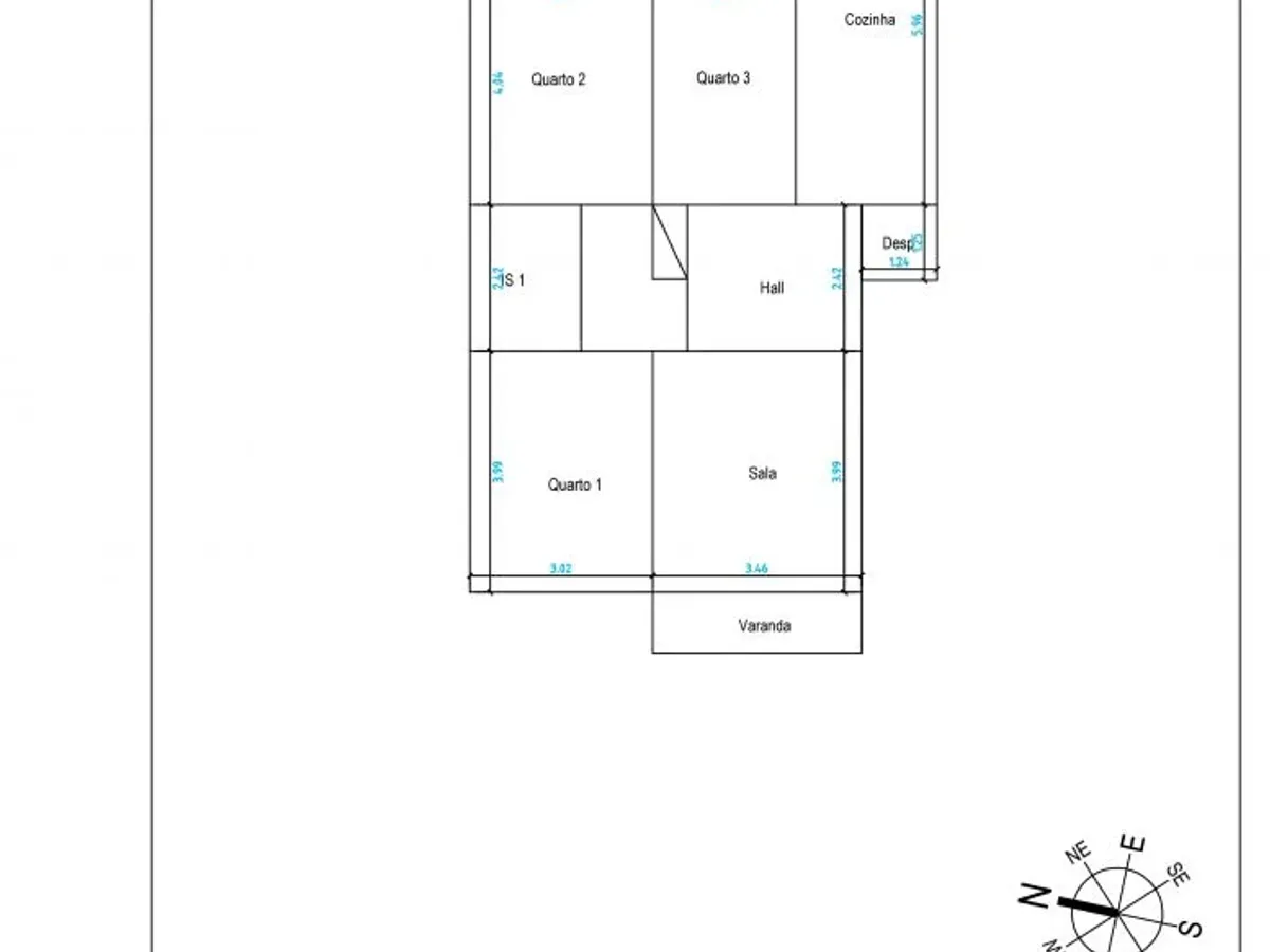
Apartamento T3 inserido ao nÃvel do 2º andar num prédio sem elevador, com gás natural, composto por, hall entrada com roupeiro, sala com varanda, cozinha com copa, marquise e despesa, hall dos quartos com roupeiro embutido, 3 quartos, WC com banheira, e arrecadação no sótão. Apartamento com reformulação a nÃvel de canalização e da cozinha. Nas proximidades temos, minimercados, restaurantes, escolas, transportes públicos, entre outros.
13 500 000 €
Apartamento T3 para venda, Castelo Branco
7 de janeiro de 2026
I
imoveisnet.pt
Profissional
Ref: A16DL0WA
Denunciar
Descrição
Apartamento T3 inserido ao nÃvel do 2º andar num prédio sem elevador, com gás natural, composto por, hall entrada com roupeiro, sala com varanda, cozinha com copa, marquise e despesa, hall dos quartos com roupeiro embutido, 3 quartos, WC com banheira, e arrecadação no sótão. Apartamento com reformulação a nÃvel de canalização e da cozinha. Nas proximidades temos, minimercados, restaurantes, escolas, transportes públicos, entre outros.
Links relacionados
0 ? selectedImageIndex - 1 : 18; preloadAdjacent(); }"
@keydown.arrow-right.window="if (showFullscreen) { selectedImageIndex = selectedImageIndex < 18 ? selectedImageIndex + 1 : 0; preloadAdjacent(); }"
x-transition:enter="transition ease-out duration-200"
x-transition:enter-start="opacity-0"
x-transition:enter-end="opacity-100"
x-transition:leave="transition ease-in duration-150"
x-transition:leave-start="opacity-100"
x-transition:leave-end="opacity-0"
class="fixed inset-0 z-50 bg-black/95 flex items-center justify-center"
@click="showFullscreen = false"
>
0 ? selectedImageIndex - 1 : 18; preloadAdjacent()"
class="absolute left-2 sm:left-4 top-1/2 -translate-y-1/2 w-12 h-12 sm:w-14 sm:h-14 bg-white/10 hover:bg-white/20 rounded-full flex items-center justify-center transition-all duration-200 hover:scale-110 z-10"
>
/ 19