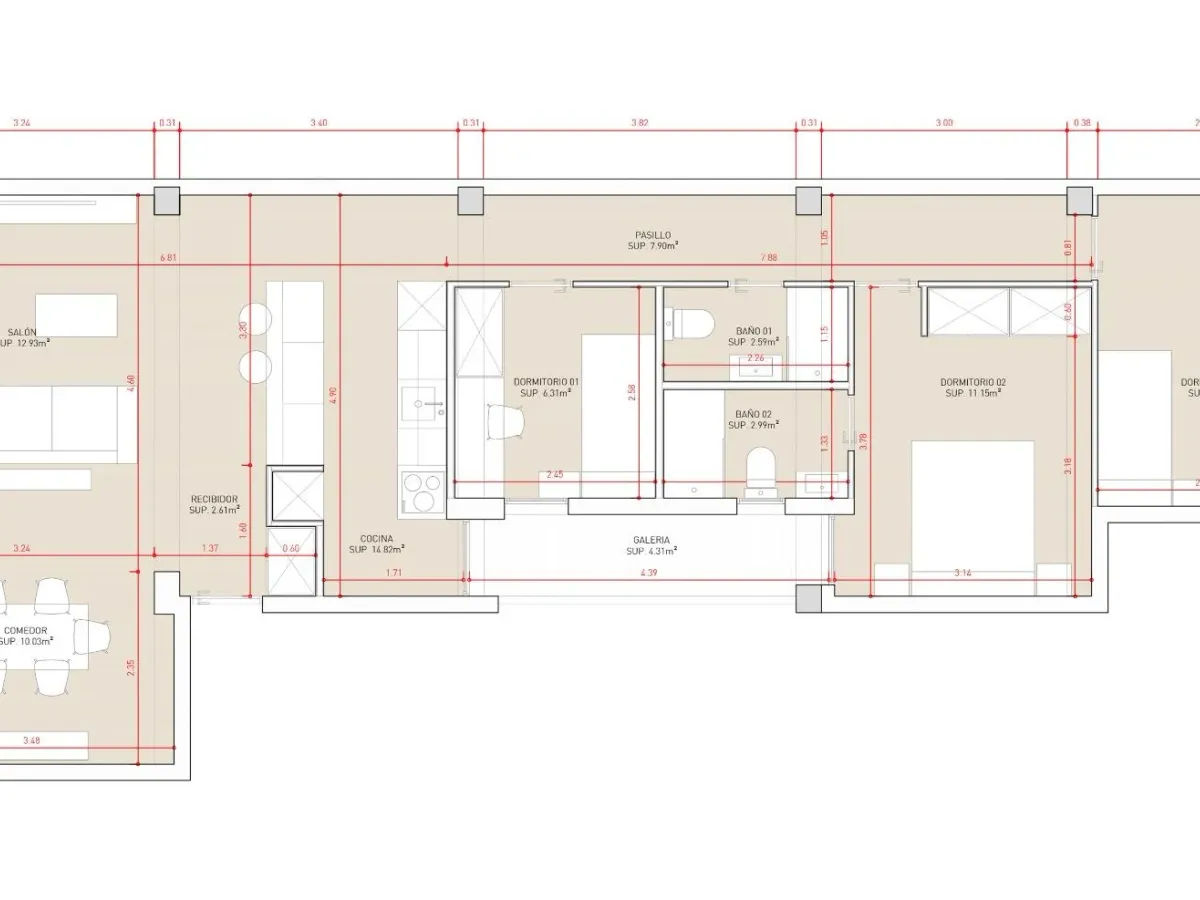
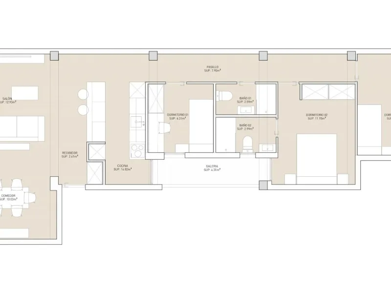
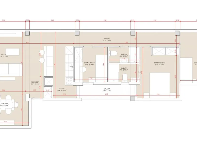
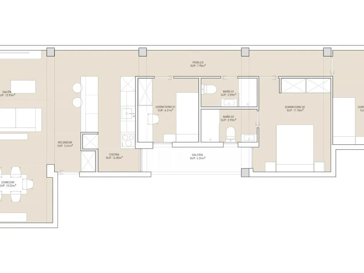
✨ Vivienda en reforma integral en el corazón de Patraix, Valencia ✨ Les presentamos esta magnífica vivienda de 103 m² catastrales, situada en un edificio con ascensor construido en 1956, en pleno centro del encantador barrio de Patraix. Una ubicación privilegiada, rodeada de todos los servicios, comercios, colegios y excelentes conexiones con el resto de la ciudad. La vivienda se encuentra actualmente en proceso de reforma integral, con un proyecto moderno y funcional que apuesta por la comodidad y el diseño contemporáneo. El proyecto contempla la siguiente distribución: 🏠 Salón-comedor amplio y luminoso con cocina abierta y isla central, ideal para disfrutar en familia o con amigos. 🛏️ Tres dormitorios, todos con armarios empotrados, y el principal con baño en suite. 🛁 Dos baños completos, diseñados con materiales de alta calidad. 🌿 Suelos de parquet en las zonas nobles y porcelánico en cocina y baños. 🔲 Ventanas Climalit, que garantizan un excelente aislamiento térmico y acústico. ❄️ Sistema de climatización por Split, marca TCL o similar, instalado en el salón-comedor y dormitorio principal, ofreciendo confort térmico durante todo el año. Se trata de una oportunidad única para estrenar una vivienda totalmente renovada, combinando el encanto de un edificio clásico con el confort y la estética de una vivienda actual. 📄 Memoria de calidades y proyecto disponibles para su consulta. Una vivienda pensada para quienes buscan vivir en el centro de Valencia, con calidad, estilo y comodidad. ¿Desea concertar una visita o conocer más detalles del proyecto? Estaremos encantados de atenderle. 🏡✨ --- **Características** Referencia: C3185 Provincia: VALENCIA Población: Valencia Zona: Arrancapins Construidos: 103 m² Superfície útil: 94 m² Precio: 380.000 € Conservación: En proyecto Dormitorios dobles: 3 Baños: 2 Aire acondicionado: Sí Suelo: Gres porcelánico Planta: 1 Instalación eléctrica: 220 W Gastos comunidad: 50 €/Mes
✨ Vivienda en reforma integral en el corazón de Patraix, Valencia ✨ Les presentamos esta magnífica vivienda de 103 m² catastrales, situada en un edificio con ascensor construido en 1956, en pleno centro del encantador barrio de Patraix. Una ubicación privilegiada, rodeada de todos los servicios, comercios, colegios y excelentes conexiones con el resto de la ciudad. La vivienda se encuentra actualmente en proceso de reforma integral, con un proyecto moderno y funcional que apuesta por la comodidad y el diseño contemporáneo. El proyecto contempla la siguiente distribución: 🏠 Salón-comedor amplio y luminoso con cocina abierta y isla central, ideal para disfrutar en familia o con amigos. 🛏️ Tres dormitorios, todos con armarios empotrados, y el principal con baño en suite. 🛁 Dos baños completos, diseñados con materiales de alta calidad. 🌿 Suelos de parquet en las zonas nobles y porcelánico en cocina y baños. 🔲 Ventanas Climalit, que garantizan un excelente aislamiento térmico y acústico. ❄️ Sistema de climatización por Split, marca TCL o similar, instalado en el salón-comedor y dormitorio principal, ofreciendo confort térmico durante todo el año. Se trata de una oportunidad única para estrenar una vivienda totalmente renovada, combinando el encanto de un edificio clásico con el confort y la estética de una vivienda actual. 📄 Memoria de calidades y proyecto disponibles para su consulta. Una vivienda pensada para quienes buscan vivir en el centro de Valencia, con calidad, estilo y comodidad. ¿Desea concertar una visita o conocer más detalles del proyecto? Estaremos encantados de atenderle. 🏡✨ --- **Características** Referencia: C3185 Provincia: VALENCIA Población: Valencia Zona: Arrancapins Construidos: 103 m² Superfície útil: 94 m² Precio: 380.000 € Conservación: En proyecto Dormitorios dobles: 3 Baños: 2 Aire acondicionado: Sí Suelo: Gres porcelánico Planta: 1 Instalación eléctrica: 220 W Gastos comunidad: 50 €/Mes
Inicie sessão para comprar e venderInicie sessão para seguir este utilizadorInicie sessão para guardar anúnciosInicie sessão para publicar um anúncio grátisInicie sessão para enviar uma mensagemInicie sessão para ver os seus anúnciosInicie sessão para ver os seus anúncios guardadosInicie sessão para criar alertas de pesquisaInicie sessão para ver o telefoneInicie sessão para reportar este anúncio