Pesquisas recentes
trending_up Tendencias
category CategorÃas populares
A pesquisar:
O mais pesquisado
search_off
Nenhuma sugestão encontrada
Presiona Enter para buscar
Minhas Pesquisas
1) { selectedImageIndex = selectedImageIndex > 0 ? selectedImageIndex - 1 : 1; }"
@keydown.arrow-right.window="if (!showFullscreen && 2 > 1) { selectedImageIndex = selectedImageIndex < 1 ? selectedImageIndex + 1 : 0; }"
>
0 ? selectedImageIndex - 1 : 1"
class="absolute left-4 top-1/2 -translate-y-1/2 w-12 h-12 bg-white/90 dark:bg-gray-800/90 hover:bg-white dark:hover:bg-gray-800 rounded-full shadow-lg flex items-center justify-center transition-all hover:scale-110"
>
Enviar mensagem
+351919850179
/ 2
Descrição
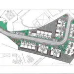
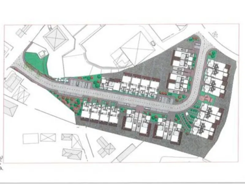
Terreno de construção com 10.000m2 localizado em Mouriz - Paredes, com projeto aprovado para 25 moradias. Excelente localização, acessos e uma fantástica exposição solar
0 €
Venda Terreno Urbano
3 de setembro de 2024
Caroligest
Profissional
Ref: 8QL3WWQL
Denunciar
Descrição
Terreno de construção com 10.000m2 localizado em Mouriz - Paredes, com projeto aprovado para 25 moradias. Excelente localização, acessos e uma fantástica exposição solar
Links relacionados
0 ? selectedImageIndex - 1 : 1; preloadAdjacent(); }"
@keydown.arrow-right.window="if (showFullscreen) { selectedImageIndex = selectedImageIndex < 1 ? selectedImageIndex + 1 : 0; preloadAdjacent(); }"
x-transition:enter="transition ease-out duration-200"
x-transition:enter-start="opacity-0"
x-transition:enter-end="opacity-100"
x-transition:leave="transition ease-in duration-150"
x-transition:leave-start="opacity-100"
x-transition:leave-end="opacity-0"
class="fixed inset-0 z-50 bg-black/95 flex items-center justify-center"
@click="showFullscreen = false"
>
0 ? selectedImageIndex - 1 : 1; preloadAdjacent()"
class="absolute left-2 sm:left-4 top-1/2 -translate-y-1/2 w-12 h-12 sm:w-14 sm:h-14 bg-white/10 hover:bg-white/20 rounded-full flex items-center justify-center transition-all duration-200 hover:scale-110 z-10"
>
/ 2