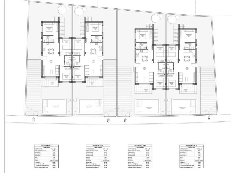
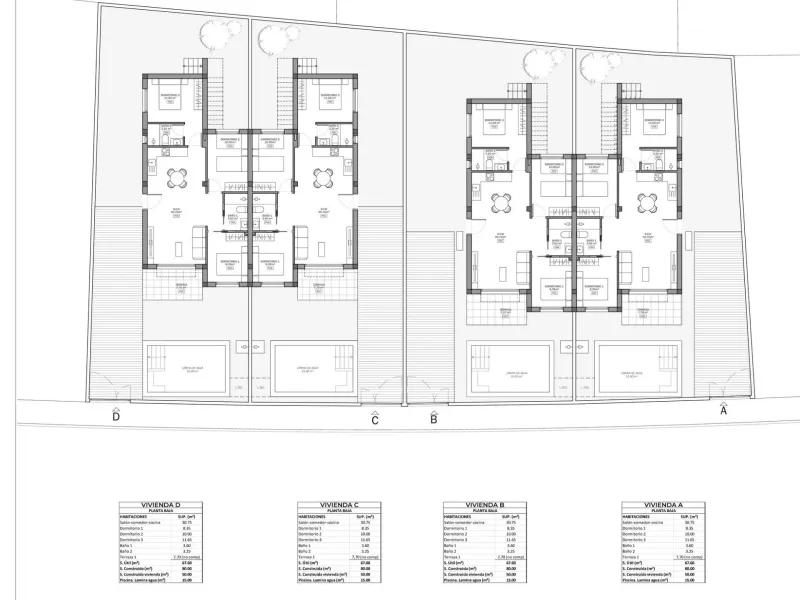
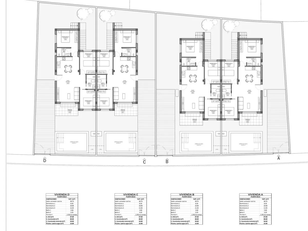
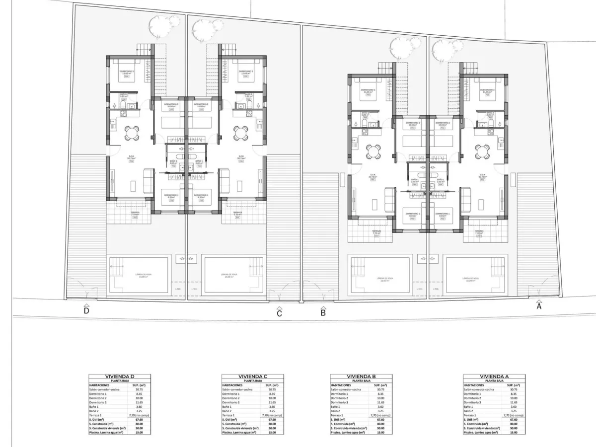
Nowe bliźniacze wille z prywatnym basenem w Country Club Mazarron; Nowoczesne wille w spokojnej okolicy mieszkalnej; Odkryj tę ekskluzywną nową inwestycję składającą się zaledwie z czterech bliźniaczych willi położonych w okolicy Country Club w Mazarron w Murcji. Położona w spokojnej okolicy mieszkalnej otoczonej naturą, lokalizacja ta zapewnia idealną równowagę między spokojem a dostępnością. Country Club słynie z relaksującej atmosfery, szerokich ulic i bliskości zarówno wybrzeża, jak i miasta Mazarron, co czyni go atrakcyjną opcją do stałego zamieszkania lub spędzania wakacji. Projekt jednopoziomowy z prywatnymi przestrzeniami zewnętrznymi. Każda willa została starannie zaprojektowana na jednym poziomie, zapewniając komfort i wygodę życia. Układ obejmuje trzy przestronne sypialnie i dwie łazienki, z których jedna jest łazienką przylegającą. Jasna, otwarta przestrzeń dzienna łączy salon, jadalnię i kuchnię, z bezpośrednim dostępem do tarasu i ogrodu. Duże okna pozwalają na dopływ naturalnego światła do domu i tworzą płynne połączenie między wnętrzem a otoczeniem zewnętrznym. Prywatny ogród wyposażony jest w sztuczną trawę, która nie wymaga częstej pielęgnacji, prywatny basen oraz taras idealny do opalania się lub spożywania posiłków na świeżym powietrzu. Każda nieruchomość posiada również parking na terenie działki, co zapewnia wygodę i bezpieczeństwo. Prywatne solarium z otwartym widokiem. Prywatne solarium na dachu, dostępne z zewnętrznych schodów, stanowi dodatkową przestrzeń na świeżym powietrzu, gdzie można cieszyć się śródziemnomorskim klimatem przez cały rok. Solarium jest wyposażone w przyłącza wodne i elektryczne, co pozwala na przyszłą instalację letniej kuchni, prysznica na świeżym powietrzu lub strefy relaksu. Ta podwyższona przestrzeń jest idealna do odpoczynku, przyjmowania gości lub podziwiania otwartych widoków na otaczający krajobraz. Wysokiej jakości wykończenia i nowoczesny komfort. Te nowo wybudowane wille zostały zbudowane z wysokiej jakości materiałów i nowoczesnych wykończeń, aby zapewnić trwałość i komfort. Wyposażenie obejmuje szafy wnękowe we wszystkich sypialniach, instalację pod klimatyzację kanałową oraz instalację pod kuchnię, co daje nabywcom możliwość dostosowania wnętrza do własnego stylu. Nowoczesny design i praktyczny układ sprawiają, że domy te nadają się na stałe miejsce zamieszkania, dom wakacyjny lub mądrą inwestycję. Dogodna lokalizacja w pobliżu Mazarron i wybrzeża. Osiedle znajduje się około 9 km od plaż Mazarron i zaledwie 5 km od miasta Mazarron, gdzie można znaleźć wszystkie niezbędne usługi, w tym sklepy, restauracje, centra medyczne i szkoły. Obszar ten ma również łatwy dostęp do autostrady, co pozwala na płynne połączenia z pobliskimi miastami. Odległości do najważniejszych punktów. Miasto Mazarron: 5 km. Plaże Mazarron i Bolnuevo: 9 km. Przystań Puerto de Mazarron: 14 km. Pola golfowe: 20 km. Lotnisko Murcia Corvera: 45 km. Miasto Cartagena: 35 km. Twój nowy dom na wybrzeżu Costa Calida. Ciesz się prywatnością, komfortem i życiem na świeżym powietrzu w jednej z tych ekskluzywnych, nowo wybudowanych willi w Country Club Mazarron. Skontaktuj się z nami już dziś, aby uzyskać więcej informacji lub umówić się na oglądanie nieruchomości i zapewnić sobie miejsce w tej atrakcyjnej dzielnicy mieszkaniowej.
Nowe bliźniacze wille z prywatnym basenem w Country Club Mazarron; Nowoczesne wille w spokojnej okolicy mieszkalnej; Odkryj tę ekskluzywną nową inwestycję składającą się zaledwie z czterech bliźniaczych willi położonych w okolicy Country Club w Mazarron w Murcji. Położona w spokojnej okolicy mieszkalnej otoczonej naturą, lokalizacja ta zapewnia idealną równowagę między spokojem a dostępnością. Country Club słynie z relaksującej atmosfery, szerokich ulic i bliskości zarówno wybrzeża, jak i miasta Mazarron, co czyni go atrakcyjną opcją do stałego zamieszkania lub spędzania wakacji. Projekt jednopoziomowy z prywatnymi przestrzeniami zewnętrznymi. Każda willa została starannie zaprojektowana na jednym poziomie, zapewniając komfort i wygodę życia. Układ obejmuje trzy przestronne sypialnie i dwie łazienki, z których jedna jest łazienką przylegającą. Jasna, otwarta przestrzeń dzienna łączy salon, jadalnię i kuchnię, z bezpośrednim dostępem do tarasu i ogrodu. Duże okna pozwalają na dopływ naturalnego światła do domu i tworzą płynne połączenie między wnętrzem a otoczeniem zewnętrznym. Prywatny ogród wyposażony jest w sztuczną trawę, która nie wymaga częstej pielęgnacji, prywatny basen oraz taras idealny do opalania się lub spożywania posiłków na świeżym powietrzu. Każda nieruchomość posiada również parking na terenie działki, co zapewnia wygodę i bezpieczeństwo. Prywatne solarium z otwartym widokiem. Prywatne solarium na dachu, dostępne z zewnętrznych schodów, stanowi dodatkową przestrzeń na świeżym powietrzu, gdzie można cieszyć się śródziemnomorskim klimatem przez cały rok. Solarium jest wyposażone w przyłącza wodne i elektryczne, co pozwala na przyszłą instalację letniej kuchni, prysznica na świeżym powietrzu lub strefy relaksu. Ta podwyższona przestrzeń jest idealna do odpoczynku, przyjmowania gości lub podziwiania otwartych widoków na otaczający krajobraz. Wysokiej jakości wykończenia i nowoczesny komfort. Te nowo wybudowane wille zostały zbudowane z wysokiej jakości materiałów i nowoczesnych wykończeń, aby zapewnić trwałość i komfort. Wyposażenie obejmuje szafy wnękowe we wszystkich sypialniach, instalację pod klimatyzację kanałową oraz instalację pod kuchnię, co daje nabywcom możliwość dostosowania wnętrza do własnego stylu. Nowoczesny design i praktyczny układ sprawiają, że domy te nadają się na stałe miejsce zamieszkania, dom wakacyjny lub mądrą inwestycję. Dogodna lokalizacja w pobliżu Mazarron i wybrzeża. Osiedle znajduje się około 9 km od plaż Mazarron i zaledwie 5 km od miasta Mazarron, gdzie można znaleźć wszystkie niezbędne usługi, w tym sklepy, restauracje, centra medyczne i szkoły. Obszar ten ma również łatwy dostęp do autostrady, co pozwala na płynne połączenia z pobliskimi miastami. Odległości do najważniejszych punktów. Miasto Mazarron: 5 km. Plaże Mazarron i Bolnuevo: 9 km. Przystań Puerto de Mazarron: 14 km. Pola golfowe: 20 km. Lotnisko Murcia Corvera: 45 km. Miasto Cartagena: 35 km. Twój nowy dom na wybrzeżu Costa Calida. Ciesz się prywatnością, komfortem i życiem na świeżym powietrzu w jednej z tych ekskluzywnych, nowo wybudowanych willi w Country Club Mazarron. Skontaktuj się z nami już dziś, aby uzyskać więcej informacji lub umówić się na oglądanie nieruchomości i zapewnić sobie miejsce w tej atrakcyjnej dzielnicy mieszkaniowej.
Inicie sessão para comprar e venderInicie sessão para seguir este utilizadorInicie sessão para guardar anúnciosInicie sessão para publicar um anúncio grátisInicie sessão para enviar uma mensagemInicie sessão para ver os seus anúnciosInicie sessão para ver os seus anúncios guardadosInicie sessão para criar alertas de pesquisaInicie sessão para ver o telefoneInicie sessão para reportar este anúncio